レジディア目白御留山 101号室の内覧・詳細などのお問い合わせはこちら

-
- 目白駅・駅前店
- TEL: 03-3953-2201
- 東京都豊島区目白3丁目4-12
- 定休日:水曜日、1~3月を除く第3日曜日
- 営業時間:10:00~18:30
- (日・祝)10:00~17:00
|
住所 東京都新宿区下落合4-4-24 |
|
物件名 レジディア目白御留山 101号室 |
|
物件種別 マンション 築年月 2003年01月 |
|
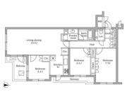
間取り 3LDK 内訳 洋室7.7畳,6.1畳,5.1畳 LDK19.7畳 |
|
専有面積 85.2m² 開口部向き 南東 |
|
構造規模 RC 地上3階建て 所在階 1階部分 |
|
交通 西武新宿線「下落合」駅 徒歩4分 |
|
交通2 JR山手線「高田馬場」駅 徒歩13分 |
|
交通3
|
その他交通 |
|
賃料 380,000円 管理費(共益費) 25,000円 |
|
礼金 1ヶ月 敷金 1ヶ月 |
|
賃貸借区分 普通賃貸借 契約期間 2年 |
|
敷金償却 |
|
現況 空予定 入居可能日 1/23内見開始予定 |
|
保証金 保証金償却 |
|
更新料 新賃料の1ヶ月分 仲介手数料 半月分+消費税(弊社に直接お申込み頂いた場合) |
|
鍵交換費用 22000円 家財保険 21,500円 |
|
保証会社加入費用 |
|
駐車場区分 敷地内 機械式駐車場 駐車場料金 3.19万円(税込) |
|
駐輪スペース
|
|
設備・条件 一階の物件,角部屋, |
|
設備・条件 |
|
取扱店舗 目白駅・駅前店 担当者 佐々木 啓介 |
|
取引態様 仲介 |
|
物件管理番号 |
- 分譲
賃貸 - リフォーム
済み - オート
ロック 
- 宅配
ボックス - 追い焚き
- 南向き
- 独立
洗面台 - 浴室
乾燥機 - バス・
トイレ別 - エアコン

- ガス
キッチン - カウンター
キッチン - コンロ
二口以上 - 室内
洗濯機置場 - 光回線

- バルコニー
レジディア目白御留山 101号室の内覧・詳細などのお問い合わせはこちら

-
- 目白駅・駅前店
- TEL: 03-3953-2201
- 東京都豊島区目白3丁目4-12
- 定休日:水曜日、1~3月を除く第3日曜日
- 営業時間:10:00~18:30
- (日・祝)10:00~17:00















































分譲賃貸マンション
充実した設備・仕様のマンションです。
3線2駅利用可能
※間取り以外の画像は同じ建物内の別のお部屋の画像となります
※1年未満解約時、賃料1ヶ月分の違約金有り※保証会社利用必須※大手法人契約の場合は敷金2ヶ月※セカンドハウス利用不可※2026年1月内装リノベーション完了予定※施工内容【キッチン・洗面台・浴室・トイレ・フローリング】