ソサエティオパスⅡ 201の内覧・詳細などのお問い合わせはこちら

-
- 本社
- TEL: 03-3953-2221
- 定休日:水曜日、1~3月を除く第3日曜日
- 営業時間:9:30~18:30
- (日・祝)10:00~17:00
|
住所 東京都豊島区南長崎4-43-13 |
|
物件名 ソサエティオパスⅡ 201 |
|
物件種別 マンション 築年月 2000年10月 |
|
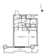
間取り 1LDK 内訳
|
|
専有面積 47.64m² 開口部向き
|
|
構造規模 RC 地上5階建て 所在階 2階部分 |
|
交通 西武池袋線「東長崎」駅 徒歩5分 |
|
交通2 都営大江戸線「落合南長崎」駅 徒歩7分 |
|
交通3
|
その他交通 |
|
賃料 172,000円 管理費(共益費) 8,000円 |
|
礼金 1ヶ月 敷金 1ヶ月 |
|
賃貸借区分 普通賃貸借 契約期間 2年 |
|
敷金償却 |
|
現況 空室 入居可能日 即入居 |
|
保証金 保証金償却 |
|
更新料 新賃料の1ヶ月分 仲介手数料 賃料の1ヶ月分+消費税 |
|
鍵交換費用 要見積もり 家財保険 19,000円 |
|
保証会社加入費用 エポスカード他 |
|
駐車場区分
駐車場料金 |
|
駐輪スペース
|
|
設備・条件 二階以上の物件, |
|
設備・条件 |
|
取扱店舗 本社 担当者 平塚 真治 |
|
取引態様 仲介 |
|
物件管理番号 |
- オート
ロック 
- 独立
洗面台 - バス・
トイレ別 - ウォシュ
レット - エアコン

- 室内
洗濯機置場 - BS
アンテナ
ソサエティオパスⅡ 201の内覧・詳細などのお問い合わせはこちら

-
- 本社
- TEL: 03-3953-2221
- 定休日:水曜日、1~3月を除く第3日曜日
- 営業時間:9:30~18:30
- (日・祝)10:00~17:00



















































オートロックとエレベーター完備で、都会での暮らしの安全と利便性を両立したマンションです。冬も快適なシャワートイレや、スタイリッシュな人工大理石の洗面台など、水回りの設備も充実しています。室内の快適性にもこだわり、冷暖房に欠かせないエアコン、そして外気の影響を受けにくい二重サッシを採用。モニター付きインターホンが来訪者をしっかり確認できるため、セキュリティ面も安心です。